You might remember the Avoca home with the iconic yellow door that captured everyone’s attention a few years back.
From retirees, first home buyers to families, people loved it, and it’s easy to see why. That cheerful splash of colour wasn’t just a statement; it perfectly reflected the welcoming, practical, and stylish home behind the door.
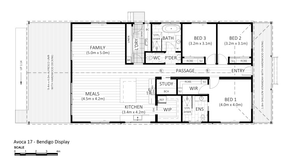
Now, we’re excited to announce the latest Avoca display home, built at our Bendigo factory, and yes, that famous yellow door is back by popular demand! Designed to suit a wide range of lifestyle needs, the Avoca's layout makes the most of its site while delivering a home that’s comfortable, functional, and full of personality.

Whether you’re looking for a forever home, a secondary dwelling, or a smaller, low-maintenance option, the Avoca design has something to offer. Open-plan living areas, clever storage, and thoughtfully positioned bedrooms mean the home works just as hard as you do, while still feeling bright and spacious.
.tif)
The display home is a chance to see the design up close, explore the features, and imagine how the layout could work for your lifestyle. And of course, that yellow door is a friendly reminder that great design can be practical, beautiful, and a little bit fun too.
If you’ve been thinking about building your next home, the new Avoca display home is the perfect place to start. Come and see what makes this design so popular, get inspired by its clever layouts and stylish touches, and talk to our team about how your own dream home could come together, with or without a yellow door!